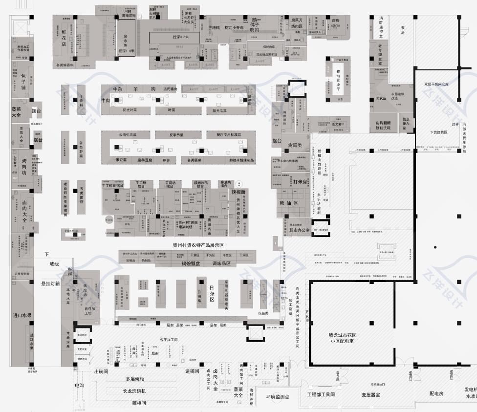
贵州黔山市集农贸市场
项目地点:贵州省·凯里市 项目面积:约2000㎡
项目名称:黔山市集提升改造设计
市场面积:约2000平方米(半地下空间)
项目地点:贵州省凯里市三商场原址
设计单位:飞洋建筑设计/飞洋市集设计研究
服务范围:商业定位、空间改造、主题植入设计、效果图、施工图设计
(黔山市集农贸市场外立面设计方案)
(黔山市集农贸市场主题餐饮区设计方案)
(黔山市集农贸市场农贸区山泉水品牌店设计方案)
(黔山市集农贸市场主题休息区设计方案)
(黔山市集农贸市场蔬菜摊位区设计方案)
(黔山市集农贸市场肉类摊位区设计方案)
(黔山市集农贸市场百货区设计方案)
【一句话项目概括】
以"贵州精品·黔山本色"为内核,打造贵州首个胖东来理念全品类农贸标杆,实现"一摊一特色,一店一品牌"的黔东南农产品展销窗口。
【项目概况】
黔山市集原址为贵州凯里三商场半地下室空间,前门位于负一层,后门连通地面一层,是连接城市不同标高的特殊商业体。本次改造以亮点吸引直达动线、规避半地下室交通闭塞为主要矛盾解决思路,以"胖东来"服务理念与品质标准为蓝本,深度融合黔东南苗族侗族文化元素,通过品牌化、精品化、体验化的全面升级,打造集在地农产品展销、民族手作体验、特色美食加工于一体的区域性农贸标杆,让传统市集成为展示贵州风物的重要平台。
【核心挑战】
如何化解半地下室空间的压抑感,创造明亮通透的购物环境?
如何在保留在地文化特色的同时,实现"胖东来"标准的品质与服务升级?
如何通过空间设计支撑"一店一特色"的品牌化运营需求?
【优势分析】
地理文化优势:坐拥凯里老城区核心位置,承载着深厚的市民记忆与消费习惯;
民族特色资源:黔东南丰富的苗族银饰、侗族布艺等非遗文化为场景营造提供独特元素;
政策产业支撑:符合贵州大力发展特色农产品与乡村旅游的战略方向。
【难点分析】
空间结构复杂:半地下室采光通风先天不足,前后入口存在较大高差;
品牌整合难度:需要统筹众多特色供应商,确保品质与形象统一;
文化现代融合:传统民族元素与现代商业空间的平衡难度较大。
【设计策略(空间价值重塑)】
"山地梯田"立体布局
利用前后入口的天然高差,设计台地式陈列区域,形成错落有致的"室内梯田"效果
在核心区域设置挑空天井,引入自然光线与通风,打破地下空间压抑感
采用镜面反射与光影艺术装置,在视觉上拓展空间维度
"民族与现代"对话的材料语言
墙面运用苗族蜡染的靛蓝色调与侗族建筑的木质格栅
地面采用仿青石板的现代材质,既保留街巷肌理又便于清洁维护
摊位设计融入银饰锻造的金属细节,展现精致工艺感
【设计策略(商业运营升级)】
"特色品牌矩阵"打造
蔬菜区引入雷公山生态农业基地直供档口
肉类区设置从江香猪、三穗鸭等地理标志产品专柜
调味区汇集赤水晒醋、遵义辣椒等老字号品牌
"透明厨房"美食体验区
设置酸汤鱼、牛羊瘪等黔东南特色美食现场制作区
配备统一的智能结算与溯源系统,确保胖东来级服务标准
设计共享就餐区,打造"即买即食"的完整消费体验
"山地风物"展销空间
在动线节点设置农产品文化展示墙,讲述特色产品背后的故事
预留季节性农产品快闪区,支持村寨轮展机制
设计可移动的民族手作体验台,增强互动性与记忆点
【总结】
黔山市集的改造设计,以"山地精神"为空间脉络,以"胖东来标准"为品质基石,成功将原本昏暗的半地下室转化为明亮通透的贵州特色农产品展销平台。通过精准的品牌筛选与文化赋能,实现了"一店一特色"的品牌化运营,既保留了在地文化的独特魅力,又满足了现代消费者对品质与体验的双重需求。项目成为凯里城市更新与乡村振兴战略的重要载体,为西南地区农贸市场升级提供了可复制的成功范式。
